歡迎光臨~廣州市秋葵视频男人的加油站醫療設備股份有限公司
  谘詢電話:400-800-8232、13922709440

移動CT車

  • 移動CT車(客車底盤)
  • 移動CT車(客車底盤)
  • 移動CT車(客車底盤)
移動CT車(客車底盤)移動CT車(客車底盤)移動CT車(客車底盤)

移動CT車(客車底盤)

  • 移動CT車
  • 車載CT
  • 移動車載CT車
  • 車載移動CT
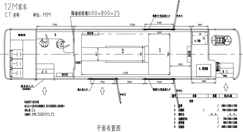
  • 產品描述: 移動CT車,車載CT技術成熟,檢查及時、準確、快速。空間布局舒適安全、相關配套設備先進完善,可迅速到達疫情現場進行病毒的篩查,車廂有擴展設計,車內可使用空間得到有效提升,配備鋰電池,超長待機時間。
  • 在線訂購

移動CT車(客車底盤)-秋葵视频男人的加油站品質、冠軍服務






車載CT技術參數:

車型    XML5182XYL15

外型尺寸mm 12000×2550×3600

公告座位(人) 2-5

底盤配置

車身配置  承載式車身

電器配置

發動機

YC6L310-50

座椅

米黃色仿皮座椅

空調

非獨立頂置式鬆芝空調(SZR-

V/F-D)28500-34400kcal/h

功率kW/rpm

228/2200

扭矩N.m/rpm

1150/1200-1700

行李倉

貫通式8.4m³,鋪地板革

暖風

除霜器

離合器

國產Φ 430膜片彈簧

後視鏡

手動

視聽係統

MP3播放器

離合操縱形式

液壓操縱

內飾

凱歌新款內飾(風尚版),無行李架

行車記錄儀

GPS、平台管理

變速箱

法士特6DS100T

車載監控係統

變速操縱形式

遠距離兩軟軸

內側麵

纖維板覆皮革

高位刹車燈

前橋

東風6.5T

側窗

最後兩側窗為內置推拉,其餘全封閉鋼化

電/氣喇叭

電喇叭

後橋

東風11T

閱讀燈

行車製動

前盤後鼓雙回路氣壓製動

外推式應急窗

空調霧化泵

駐車製動

儲能彈簧駐車製動

自動破窗器

側窗四個

倒車監視器

輔助製動

特爾佳2100N.M

司機窗

手動

儀表形式

威帝CAN總線

轉向器

動力轉向器

儀表台

凱歌新款儀表台

電子鍾

電控製動係統

國產ABS

司機椅

絨布減震三向可調

調整臂

國產自動間隙

窗簾

半幅遮陽簾/全車窗簾

懸掛係統

10/12鋼板懸掛

行李倉門

上掀式鋁合金

輪胎

雙錢295/80R22.5

天窗

兩個(帶換氣扇)

油箱

260L

乘客門

前中氣動外擺門,帶遙控鎖

安全帶

伸縮式

護攔

噴塑管,無導遊靠背

地板

灰色地板革

滅火裝置

發動機艙自動滅火裝置



以上僅供參考,詳細參數以及設備配置請谘詢公司業務員!



聯係秋葵视频男人的加油站

聯係人:13922709440 餘先生

固 話:86-020-86059537

服務熱線:400-800-8232

郵 箱:xianhao266@163.com

公 司:廣州市秋葵视频男人的加油站醫療設備股份有限公司

廣州總部地址:廣州市黃埔區開源大道188號十三棟1301室

湖北公司地址:湖北省鍾祥市經濟開發區協企聯盟園區C6、C7棟

網站地圖